Auteur/autrice : rivesaltesjoeldiago

  • Un 3ème Groupe Scolaire à Rivesaltes ?

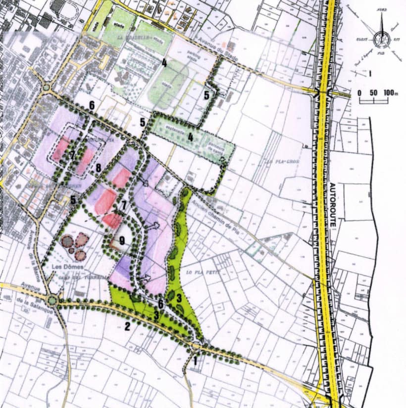
    Depuis les dernières élections, la majorité parle d’installer un nouveau groupe scolaire sur la commune. Le lieu initialement choisi était sur le secteur du Pla Petit (Chiffre 9 sur l’image ci-dessous), en face de la nouvelle gendarmerie, derrière les dômes, pour venir en appui du nouveau lotissement « Plein Soleil ». Ce lotissement, d’une superficie de 4,9 hectares, serait composé de 79 logements sous la forme d’une programmation mixte de 59 logements individuels et 20 collectifs. Il fait déjà l’objet d’une concession d’aménagement ouverte aux marchés publics:

    https://lacentraledesmarches.com/marches-publics/Rivesaltes-Ville-de-Rivesaltes-Concession-d-amenagement-lotissement-communal-Lieu-dit-ampquot-Plein-Soleilampquot/461831

    Cette zone vient d’être déclarée zone « Grenat » par le nouveau PPRi (Plan de Prévention des Risques inondation) imposé par l’état et mis en oeuvre par la préfecture.

    Cela signifie que cette zone est devenue pratiquement inconstructible et que les opérations d’achats de terrains déjà effectuées par la commune sont rendues caduques.

    Notre proposition est de déplacer ce projet dans une zone plus adaptée à la fois du point de vue des risques, des déplacements des élèves et du foncier disponible. La zone nord Agly semble correspondre à ces critères, en desservant de nombreux quartiers (Cami de Vingrau, Roboul, les Solades) qui se sont beaucoup étendus ces dernières années.

    Pour cela une étude préalable doit être effectuée car construire un groupe scolaire a des implications fortes en termes de finances. Il ne s’agit pas seulement de construire les bâtiments (ou de rénover un bâtiment existant), il faut aussi tenir compte des moyens humains que la commune va devoir mettre à disposition:

    Toutes les informations sur le bâti scolaire sont disponibles sur le site du ministère de l’éducation nationale:

    https://batiscolaire.education.gouv.fr

    Mettre en oeuvre un projet de nouveau groupe scolaire est donc un travail de longue haleine qui doit être démarré au plus tôt pour en évaluer la faisabilité. Selon l’expérience du ministère, cela nécessite au minimum 2 ans d’évaluation.

    Pour accéder directement au guide du bâti scolaire c’est ICI

  • L’école sans voiture, est-ce possible ?

    L’école sans voiture, est-ce possible ?

    Mobilités douces et espaces scolaires : des exemples inspirants… à adapter à Rivesaltes

    Dans plusieurs villes françaises, des démarches innovantes montrent que sortir de l’omniprésence de la voiture dans la ville et autour des écoles est possible, tout en améliorant la sécurité, la santé et la qualité de vie des habitants.

    À Strasbourg, la municipalité a mis en place depuis 2021 des “rues-écoles” : il s’agit de fermer temporairement à la circulation certaines rues autour des établissements scolaires aux heures d’entrée et de sortie. Cela sécurise les déplacements des enfants et encourage l’usage de la marche, du vélo ou des transports collectifs tout en réduisant bruit et pollution pour les familles.

    De même, à Orléans, l’expérimentation autour de l’école Marie-Stuart a fermé la circulation à certains moments de la journée afin de favoriser des trajets apaisés à pied ou à vélo vers l’école, renforcer la convivialité et garantir plus de tranquillité pour les parents et les enfants.

    https://www.orleans.fr/actualites/detail/experimentation-dune-rue-scolaire-a-lecole-marie-stuart

    Enfin, des actions similaires de journée sans voiture dans des quartiers scolaires (comme à Corbeil-Essonnes) montrent combien il est possible de sensibiliser les familles à la mobilité douce, à la sécurité routière et à un usage plus serein de l’espace public autour des écoles.

    https://www.corbeil-essonnes.fr/actualites/journee-sans-voiture-a-la-nacelle

    Ces initiatives vont au-delà de simples expérimentations : elles visent à donner concrètement plus de place aux mobilités actives, améliorer la santé, la sécurité des enfants et réduire la dépendance à la voiture.

    Pourtant, dans les Pyrénées-Orientales, le vélo est encore trop souvent considéré comme un loisir plutôt qu’un véritable moyen de transport quotidien. Cela se ressent dans l’insuffisance des infrastructures cyclables continues, la faible sécurisation des trajets scolaires et l’absence de politiques locales ambitieuses pour réduire l’usage de la voiture en ville, malgré quelques initiatives comme la journée « tous à vélo » organisée par la communauté de communes PMM:

    À Rivesaltes, nous pensons que des solutions adaptées à notre territoire — pistes cyclables sécurisées, rues scolaires, zones apaisées autour des écoles — doivent être intégrées à une vraie politique de mobilité douce. Cela ne profite pas seulement aux cyclistes ou aux écoliers, mais à tous les habitants qui souhaitent une ville plus sûre, plus saine et plus agréable à vivre.

    Des zones de parking temporaire et de dépose-minute sécurisées seront également aménagées pour permettre aux parents de poursuivre leur trajet vers leur travail ou leur destination finale.

  • VOIRIE-URBANISME

    La voirie et l’urbanisme ne sont pas de simples sujets techniques : ce sont des leviers majeurs de sécurité, de qualité de vie, d’attractivité et de maîtrise de l’avenir du territoire.
    Une commune qui ne pilote pas ces compétences subit les décisions, au lieu de les choisir. Maîtriser la voirie et l’urbanisme, c’est protéger la sécurité, la qualité de vie et l’avenir de la commune.

    35%
    CHAUSSÉES À RÉPARER
    25%
    SURFACE INCONSTRUCTIBLE SUITE AU NOUVEAU PPRi


    1. Garantir la sécurité des habitants

    Une voirie mal conçue ou mal entretenue est source :

    • d’accidents,
    • de vitesses excessives,
    • de conflits entre piétons, cyclistes et automobilistes.

    Une politique maîtrisée permet :

    • d’apaiser la circulation,
    • de sécuriser les abords des écoles,
    • de protéger les usagers les plus fragiles.

    La sécurité routière commence par l’aménagement, pas uniquement par la sanction.

    👉Réparation des routes et des rues (y compris dans les lotissements)

    👉Élargissement des trottoirs (accessibilité PMR, Poussettes) là où c’est possible

    👉Sécurisation des passages piétons

    Rénover/Réparer les chaussées en priorité

    2. Préserver la qualité de vie et le cadre de vie

    L’urbanisme structure le quotidien :

    • densité du bâti,
    • circulation,
    • stationnement,
    • espaces verts,
    • nuisances.

    Sans vision, on crée :

    • des quartiers enclavés,
    • des problèmes de circulation,
    • des tensions entre habitants.

    Un urbanisme réfléchi évite les erreurs irréversibles. Dans notre projet nous mettons en avant plusieurs éléments phares:

    👉 Etude pour la construction d’une passerelle piéton/vélo/PMR sur l’Agly (en concertation avec le SMBVA)

    👉Etude pour l’aménagement des berges de l’Agly en lien avec la passerelle

    👉Création d’un véritable réseau connecté de pistes cyclables (accessible piétons, poussettes et PMR) en collaboration avec l’Agglo PMM.

    Exemple de gué piéton à Sommières (30-Gard), sur une rivière bien plus inondable que l’Agly: le Vidourle

    Une passerelle pourra être réalisée en collaboration avec le SMBVA qui gère le lit de l’Agly et elle sera majoritairement subventionnée par des fonds européens car il s’agit d’un projet structurant à l’échelle de la commune.

    3. Maîtriser le développement de la commune

    Construire, ce n’est pas seulement autoriser des permis :

    • c’est anticiper les réseaux,
    • les écoles,
    • les équipements publics,
    • les déplacements.

    Une commune qui maîtrise son urbanisme :

    • choisit où et comment elle se développe,
    • évite la bétonisation subie,
    • protège ses terres agricoles et naturelles.

    C’est la condition d’un développement équilibré et durable.

    👉Création de places de parking désimperméabilisées (pas de béton, pas de goudron) pour favoriser l’infiltration des eaux pluviales

    👉Préservation des terres agricoles et aides à la promotion des agriculteurs (Vignes, Maraichers etc…)

    Exemple d’Elne

    4. Préserver les finances communales

    Une urbanisation mal anticipée coûte cher :

    • voiries à refaire,
    • réseaux sous-dimensionnés,
    • équipements publics insuffisants.

    À l’inverse, une bonne planification permet :

    • d’étaler les investissements,
    • d’éviter les dépenses d’urgence,
    • de sécuriser les finances communales.

    Un urbanisme maîtrisé est aussi un urbanisme responsable financièrement.

    👉Etude de la circulation à Rivesaltes (fréquence, trajets, usage)

    👉Revente partielle des ~250 maisons inoccupées de la Mairie pour diminuer les coûts et financer certains projets

    5. Répondre aux enjeux climatiques et environnementaux

    Voirie et urbanisme sont au cœur de la transition écologique :

    • gestion des eaux pluviales,
    • lutte contre les îlots de chaleur,
    • végétalisation,
    • mobilités douces.

    Bien aménager aujourd’hui, c’est adapter la ville aux défis de demain. Ces mesures sont aussi reprises dans la partie du programme consacrée à l’environnement et à l’agriculture.

    👉Evaluation des écoulements suite au nouveau Plan de Prévention des Risques Inondation (PPRi)

    👉Busage de l’A9 pour améliorer l’écoulement des crues (avec Vinci)

    👉Entretien régulier des lits de l’Agly, de la Llobère et du Roboul avec le Syndicat Mixte du Bassin Versant de l’Agly (SMBVA)

    Diminuer l’effet des crues est essentiel pour pouvoir réviser le PPRi: 1) diminuer le risque et 2) redonner de la valeur foncière aux terrains actuellement placés en zone à très fort risque.

    6. Renforcer l’attractivité de la commune

    Les familles, les entreprises et les commerçants regardent :

    • la qualité des routes et trottoirs,
    • l’accessibilité,
    • la cohérence des quartiers,
    • la lisibilité des projets urbains.

    Une commune bien aménagée est une commune qui donne envie de s’y installer. L’attractivité de la commune passe donc aussi par un dynamisme de ses zones d’activité:

    👉Faire du Mas de la Garrigue, la vitrine du département (avec PMM et le Département)

    👉Favoriser l’installation de primo-accédants dans le centre-ville (revente des maisons inoccupées)

    Revente des maisons inoccupées du centre-ville, une bonne idée ?

  • SECURITE-PROPRETE

    À Rivesaltes, il est indispensable de ne pas confondre l’insécurité réelle avec le sentiment d’insécurité, mais il serait tout aussi irresponsable de minimiser l’un ou l’autre.
    La tranquillité publique repose sur un équilibre clair : présence, prévention, mais aussi règle et sanction.

    La liste « Rivesaltes avec Joël Diago » défend une vision équilibrée: ni angélisme, ni surenchère sécuritaire. La tranquillité publique se construit par la présence, se renforce par la prévention et s’impose par le respect des règles.

    271
    CAMBRIOLAGES en 2025 (STABLE mais trop élevé)
    130
    VIOLENCES CONTRE PERSONNES en 2025 (AUGMENTATION)


    🛡️ Sécurité et tranquillité publique : agir sur les faits et sur le ressenti

    1. Assumer l’autorité municipale face aux incivilités

    Les incivilités du quotidien — vitesse excessive, stationnements dangereux, dépôts sauvages, dégradations, nuisances — nourrissent fortement le sentiment d’insécurité. La commune doit donc faire respecter les règles qu’elle édicte.

    • Verbalisation systématique des incivilités, sans complaisance ni stigmatisation.
    • Sanction effective des infractions, notamment en matière de circulation dangereuse et de dépôts illégaux.
    • Application équitable des règles sur l’ensemble du territoire communal.

    La règle n’est respectée que lorsqu’elle est appliquée.

    Le vote récent du Sénat vise à renforcer les compétences de la police municipale

    👉Contrôles réguliers de vitesse avec sanctions

    👉Passages en sens unique de certaines rues et installation de chicanes ou cassis pour diminuer la vitesse (avec tests préalables: voir ICI)

    👉Lutter contre les dépôts sauvages et les déjections canines (Vidéosurveillance mobile et intelligente type « Vizzia »)

    👉 Feux piétons à proximité des écoles (redéploiement PM devant le portail pour sa mission de sécurisation et faire respecter la loi)

    Installer des feux piétons aux passages stratégiques. Attention ce type de dispositif est très encadré.

    2. Une vidéoprotection performante et utile

    La vidéoprotection est un outil, pas une fin en soi. Elle doit être :

    • efficace, avec un matériel fiable et bien positionné,
    • exploitable, avec des images réellement utilisables par les forces de l’ordre,
    • intégrée à une stratégie globale, en lien avec la police municipale et la gendarmerie.

    Son objectif est double :

    • dissuader les comportements délictueux,
    • faciliter l’identification et la sanction lorsque des infractions sont commises.

    Une vidéoprotection inefficace rassure peu et protège mal.

    👉Rendre performante la vidéosurveillance existante / repositionnement stratégique des caméras / Transmission temps rèel vers le PC sécurité

    👉 Un agent permanent de la Police Municipale au poste de vidéo-surveillance pour verbalisation en direct des infractions

    Installer des caméras autonomes en énergie et discrètes afin de mieux constater les infractions (dépôts sauvages, déjections canines). Les images envoyées en 4G peuvent être visionnées par des agents assermentés.

    3. Présence humaine, médiation et sanction : une approche complémentaire

    La fermeté n’exclut ni le dialogue ni la prévention :

    • présence visible de la police municipale,
    • médiation pour désamorcer les tensions,
    • mais réponse claire et rapide en cas de non-respect des règles.

    ➡️ La combinaison de la présence humaine, de la médiation et de la sanction est la seule réponse durable.

    👉 Prolongement de la convention Voisins Vigilants en partenariat avec la Gendarmerie et désignation d’un référent tranquilité publique par quartier

    👉 Rondes régulières de la PM de jour comme de nuit

    👉 Perturber constamment les points de deal et de trafics

    👉 Augmenter le nombre de poubelles publiques et installer des toilettes publiques

    4. Permettre des déplacements sereins et une déambulation apaisée

    Le sentiment d’insécurité vient aussi de notre environnement quotidien: routes et rues mal entretenues, trottoirs dégradés, passages piétons effacés et mal éclairés. Cet environnement pousse inconsciemment aux incivilités. Cet aspect est largement développé dans la partie du programme consacrée à la voirie et à l’urbanisme.

    👉 Rénovation des rues et des trottoirs

    👉 Feux piétons à proximité des écoles (redéploiement PM devant le portail pour sa mission de sécurisation et faire respecter la loi)

    👉 Eclairage de certains passages piétons stratégiques

  • SPORTS & ASSOCIATIONS

    Le sport constitue un fait social complet qui touche à de nombreuses questions sensibles de la société française : santé, égalité des sexes, vieillissement de la population, éducation mais aussi cohésion sociale, intégration et citoyenneté, aménagement du territoire. C’est pourquoi l’étude du Conseil d’État formule des recommandations pour une politique publique ambitieuse, à mener par les pouvoirs publics et en lien étroit avec le tissu associatif qui structure le mouvement sportif.

    Les associations sont aussi un levier de participation démocratique. Elles permettent à chacun de s’impliquer dans la vie de la commune, de proposer des idées, de contribuer à des projets collectifs, et d’agir concrètement au service de l’intérêt général.

    1,13%
    PART DU BUDGET ANNUEL
    52
    ASSOCIATIONS SUBVENTIONNEES

    Avec 1.13% du budget de la commune alloué aux associations, cela représente un peu plus de 216000 euros. Pour la plupart des associations, ce budget n’a pas augmenté depuis des années et ne tient même pas compte de l’inflation alors que les frais de déplacement (location de véhicules, essence, train etc…) ont fortement augmenté ces dernières années. Quand on sait que la moyenne nationale se situe à près de 4% du budget annuel d’une commune, on peut s’interroger.

    1. Modernisation et entretien des équipements sportifs

    👉 Garantir des installations sûres, bien entretenues et adaptées à toutes les disciplines (stades, gymnases, terrains multisports…). En particulier, rénovation des sanitaires et des vestiaires.

    ➡️ Cela passe par des plans de rénovation réguliers, une meilleure signalisation, l’accessibilité PMR et des horaires optimisés.

    👉 création d’un bureau des sports pour promouvoir et organiser des manifestations sportives de prestige, régionales et nationales, sur les voies publiques et sur les Allées Joffre (Pétanque, tournois sportifs, courses cyclistes…)

    ➡️ Cela participe au rayonnement de la commune et à sa réputation

    Remettre aux normes nos installations sportives

    2. Développement de nouvelles infrastructures de proximité

    Créer ou améliorer des espaces de sport en plein air :
    👉 street workout / PumpTrack / Padel municipal
    👉 terrains de pétanque modernisés
    👉 zones de sport de rue pour les jeunes.
    ➡️ Des équipements faciles d’accès pour tous les quartiers.

    Créer des espaces sportifs accessibles à tous et vecteurs de lien social: Street Workout et PumpTrack

    3. Promotion des mobilités actives vers les équipements

    Assurer des liaisons cyclables et piétonnes sécurisées vers tous les lieux sportifs (centre-ville, Dômes, installations majeures…) : pistes cyclables continues, trottoirs élargis, passage sécurisé.
    ➡️ Permettre à chacun d’accéder facilement aux activités sans forcément utiliser la voiture.

    4. Soutien aux clubs, associations et évènements sportifs

    Renforcer l’accompagnement des clubs locaux :
    🏆 subventions claires et revues à la hausse pour tenir compte de l’inflation,
    📊 aides à la formation des encadrants,
    🤝 soutien logistique pour les compétitions et animations. Promotion des tournois majeurs (Foot/Rugby/Tennis/Billard/Basket/Handball/Tennis de Table etc…) et des compétitions équestres.
    👉Organiser ou co-organiser des événements sportifs festifs pour rassembler les habitants (courses, tournois, journées familiales).

    👉 Remettre le National de Pétanque sur les Allées Joffre

    Remettre des événements majeurs sur les Allées Joffre

    5. Sport santé, sport pour tous, sport intergénérationnel

    Mettre en place des programmes adaptés à tous les publics :
    ✔ activités pour séniors (marche active, aquagym…),
    ✔ initiations sportives pour enfants,
    ✔ parcours santé en extérieur,
    ✔ ateliers bien-être et prévention.
    ➡️ Faire du sport un vecteur de santé, de cohésion sociale et de mieux-être pour tous.

    6. Accès facilité aux salles communales pour les associations

    Permettre aux particuliers et aux associations d’accéder facilement aux salles communales, sécuriser les espaces publics en cas de manifestations extérieures.

    👉 Faciliter les initiatives des associations (Animations, commerçants CAR+…)
    👉 Réunions et activités associatives
    👉 Goûters d’anniversaire
    👉 QG lors des manifestations

    Faciliter les initiatives des associations

    ETAT DES LIEUX:

    L’état des sanitaires dans le gymnase de Handball. Ce n’est qu’un exemple parmi tant d’autres.

    C’est l’image de la commune qui est en jeu !

  • ANIMATIONS-PATRIMOINE-CULTURE-TOURISME

    Développer les animations, la culture, le patrimoine et le tourisme est essentiel pour améliorer la qualité de vie des habitants et renforcer le vivre-ensemble. Ces axes créent du lien social, rompent l’isolement et favorisent les rencontres entre générations. Ils valorisent l’identité et l’histoire de la commune, en donnant de la fierté aux habitants et des repères aux plus jeunes. Une ville animée et culturellement vivante soutient directement les commerces et l’économie locale. Elle renforce aussi l’attractivité du territoire auprès des familles, des visiteurs et des entreprises. Ces politiques participent à une image dynamique et positive de la commune. Elles permettent d’agir de manière souple, progressive et évaluée, sans projets coûteux et irréversibles. Enfin, investir dans ces axes, c’est faire le choix d’une commune plus humaine, plus attractive et plus solidaire.

    15%
    OCCUPATION DES SALLES DE SPECTACLE
    10%
    OCCUPATION DES SALLES COMMUNALES

    🎭 Animations – Faire vivre la ville toute l’année

    Rivesaltes bénéficie déjà d’événements populaires qui rythment l’année : Les Fééries de Rivesaltes, une fête de Noël avec spectacles, animations pour tous âges et concerts sur les Allées Joffre qui attire familles et visiteurs locaux chaque année, Fête de la Saint André, de l’abricot, du Babau. Pour aller plus loin, nous comptons :

    👉Structurer un calendrier annuel d’animations thématiques (printemps des plantes, fêtes de la viticulture, festival de musique locale, marchés nocturnes estivaux, fête des rois mages, fêtes du muscat) pour renforcer l’attractivité du centre-ville.

    👉Noël : une fête dynamique, sécurisée, accessible y compris durant les vacances scolaires : village de Noël avec son marché d’artisanat.

    👉Autoriser et généraliser les terrasses de café et de restaurant sur nos places.

    👉Soutenir les associations locales dans l’organisation d’événements intergénérationnels (fête du Babau, soirées de quartier, ciné en plein air) en offrant des moyens logistiques ou des subventions ciblées (augmentation des subventions aux associations pour rattraper l’inflation depuis la période pre-covid).

    👉Créer un agenda numérique et papier commun accessible à tous les habitants, relayé régulièrement par l’office de tourisme et les réseaux municipaux.

    👉Créer un grand marché (dont brocante) le samedi matin des Allées Joffre jusqu’à la place du Général de Gaulle. Dans un premier temps le marché du lundi matin sera maintenu.

    Une appli mobile qui permet de voir l’agenda des événements, des spectacles et des fêtes en temps réel. C’est une application que nous proposons à la commune depuis MARS 2024 (voir Rivesaltes Magazine n°150)

    🏛️ Patrimoine – Valoriser l’identité historique de Rivesaltes

    Rivesaltes possède un riche patrimoine et une culture catalane qui peuvent devenir un vecteur fort de fierté locale et d’attractivité :

    Le Mémorial de Rivesaltes, lieu de mémoire majeur sur les internements liés à la guerre civile espagnole, la Seconde Guerre mondiale et la décolonisation, qui offre des expositions, des visites guidées et un espace culturel vivant.

    Vestiges historiques comme les remparts médiévaux, la Tour de l’Horloge ou l’église romane Sainte-Marie de la Garriga.

    La maison natale du Maréchal Joffre et d’autres bâtiments historiques dispersés dans la ville.

    Parmi les actions envisagées, nous comptons:

    👉Développer des parcours de découverte du patrimoine (physiques et numériques) avec des QR codes, panneaux explicatifs et conférenciers en valorisant l’Office du Tourisme.

    👉Rétablir le partenariat avec l’Université de Perpignan (UPVD) dans le cadre de la formation de Licence Pro « Guide Conférencier ».

    👉Promouvoir les journées du patrimoine avec des visites guidées, animations pour enfants et ateliers interactifs.

    👉Soutenir la restauration et l’entretien des monuments pour garantir leur accessibilité et leur mise en valeur.

    👉Aménagement de la place de l’église dans le style architectural médiéval pour soutenir l’identité du coeur de ville.

    Développer des parcours découverte du patrimoine

    🎨 Culture – Une offre enrichie et accessible

    Rivesaltes possède déjà une saison culturelle présentée au Palais des Fêtes et aux Dômes, avec des concerts, spectacles et rencontres artistiques. Mais nous comptons faire de la culture un droit, pas un luxe ! Pour renforcer cet axe nous comptons:

    👉Encourager la création locale (théâtre amateur, musiciens, arts plastiques) par des résidences d’artistes et des événements de rue.

    👉Développer des ateliers culturels municipaux (danse, musique, écriture, cinéma) pour toutes les tranches d’âge. Par exemple, nous pourrions proposer un ciné-club au palais des fêtes.

    👉Travailler avec des partenaires culturels régionaux (festivals, structures de Perpignan, associations) pour proposer des événements diversifiés.

    👉Mettre en place une navette à la demande pour assister aux spectacles.

    👉Accès gratuit des salles de spectacle aux associations culturelles de la commune

    🌍 Tourisme – Faire de Rivesaltes une étape incontournable

    Rivesaltes possède des atouts touristiques réels mais complètement sous-exploités.

    👉Le Muscat de Rivesaltes, vin doux naturel emblématique du territoire, qui constitue un attrait oenotouristique fort et peut être valorisé via des circuits, dégustations et événements dédiés à la viticulture locale.

    👉Des caveaux, domaines et événements autour du vin qui accueillent déjà les visiteurs.

    👉L’office de tourisme qui offre des informations, espaces d’exposition, et soutien aux visiteurs.

    👉Une situation géographique favorable, entre mer, vignobles et Pyrénées qui permet de proposer des excursions ou partenariats touristiques régionaux.

    👉Créer un agenda numérique et papier commun accessible à tous les habitants, relayé régulièrement par l’office de tourisme et les réseaux municipaux. voir ICI ou LA

    👉Volonté de la Région de rétablir la ligne SNCF des Fenouillèdes (Arrêt à Rivesaltes). Aménagement de l’accès à la gare et parking aménagé et éclairé autour de l’ancienne halle ferroviaire.

    Faire de Rivesaltes la porte d’entrée du pays catalan

  • VIE SOCIALE & SANTE

    communes jouent un rôle clé sur les déterminants de santé : cadre de vie, écoles, environnement, alimentation, mobilité, information des habitants, accès aux soins. Autant de domaines qui relèvent de la compétence des maires, dont la proximité, notamment dans les petites et moyennes villes, avec les populations leur confère une capacité d’action unique.

    A Rivesaltes, parler de vie sociale, de solidarité, des aînés et de la santé n’est ni accessoire ni compassionnel : c’est répondre aux réalités humaines du territoire.

    30%
    PLUS DE 60 ANS
    1680€
    REVENU MÉDIAN

    Depuis plusieurs années, l’accès aux soins se dégrade en France. Les écarts entre les territoires se creusent, tant en termes d’accès géographique que financier. À Rivesaltes, parler des anciens, de la santé et de la vie sociale, c’est donc parler de la majorité silencieuse de la population et de la réalité quotidienne des habitants.

    NOTRE ENGAGEMENT:

    Faire de la solidarité le coeur de notre action municipale

    🤝👵🩺 Pourquoi la vie sociale, les anciens et la santé font partie de nos priorités municipales ?

    1. Parce que la commune est le premier rempart contre l’isolement

    L’isolement social est aujourd’hui l’un des principaux facteurs de mal-être, de perte d’autonomie et de sentiment d’abandon.

    • La commune est l’échelon le plus proche des habitants.
    • Elle peut agir par la présence humaine, les services de proximité, la vie associative et intergénérationnelle.

    Maintenir le lien social, c’est préserver la dignité et la cohésion de la ville.

    👉Démarrer les démarches pour l’installation d’un EHPAD (compétence département) proche du centre-ville.

    👉Conseil municipal des aînés avec les jeunes pour développer les liens intergénérationnels

    👉Continuité des actions en faveur des familles et des PMR avec le CCAS et aide à l’insertion des PMR

    Une Maison de Retraite à Rivesaltes: opportunité ou contrainte ?

    2. Parce que bien vieillir chez soi est un enjeu majeur

    Avec une population vieillissante, la priorité est claire :

    • permettre aux aînés de rester autonomes le plus longtemps possible,
    • faciliter l’accès aux services, aux soins, aux déplacements,
    • prévenir plutôt que subir la dépendance.

    Anticiper le vieillissement, c’est éviter des situations de crise humaine et financière.

    👉Place de parking « intervention » réservée par rues/zones pour les médecins et infirmier(e)s

    👉Continuer la livraison des repas à domicile

    Faciliter les visites de soins à domicile

    3. Parce que la santé est aussi une compétence de proximité

    Même si la santé relève en grande partie de l’État, la commune agit sur :

    • l’accès aux soins,
    • la prévention,
    • l’information,
    • le cadre de vie.

    Une ville attentive à la santé est une ville qui protège les plus fragiles et soulage les familles.

    👉Continuer les actions en faveur de l’installation de médecins dont des spécialistes

    👉Etudier la possibilité d’installer une maison de répit à Rivesaltes

    👉Valorisation des producteurs locaux en circuit court pour les repas des cantines scolaires et du 3ème âge.

    Une maison de répit, qu’est-ce que c’est ?

    4. Parce que la précarité fragilise le vivre-ensemble

    Avec un revenu médian de 1 680 €, de nombreux foyers vivent sous tension :

    • difficultés à se soigner,
    • renoncement aux loisirs,
    • isolement progressif.

    La solidarité municipale n’est pas de l’assistanat : c’est un facteur de stabilité sociale.

    👉 Création d’une mutuelle communale à tarif de groupe et négocié pour gagner en pouvoir d’achat

    👉Mise en place d’une carte de solidarité communale

    Quels avantages d’une mutuelle communale ?

    5. Parce que la vie sociale est un facteur de sécurité et d’apaisement

    Une ville où les habitants se connaissent, se rencontrent et se soutiennent est :

    • plus apaisée,
    • plus solidaire,
    • moins sujette au sentiment d’abandon ou d’insécurité.

    Le lien social est une politique de prévention à part entière.

    👉 Accès PMR à la gare et aux tribunes sportives. Prise en compte de tous les handicaps (motricité, surdité, cécité), pour aménager les passages piétons.

  • ENVIRONNEMENT & AGRICULTURE

    Les collectivités se trouvent dans une période d’entre-deux avec des incertitudes. Pourtant, ce moment est également stratégique : il offre l’opportunité de préparer l’avenir de notre territoire, notamment dans le cadre de projets d’aménagement durable. Ces projets, qui s’inscrivent dans le temps long, nécessitent une anticipation et une planification stratégique avant de passer à l’action opérationnelle. À Rivesaltes, environnement et agriculture ne sont pas des sujets périphériques : ils sont au cœur de la qualité de vie, de l’économie locale et de la résilience face aux défis climatiques. Notre projet municipal responsable doit les intégrer de façon cohérente, durable et participative.

    25%
    SURFACE INONDABLE NON CONSTRUCTIBLE
    65
    ARBRES COUPES EN 2025

    Les enjeux environnementaux pour Rivesaltes

    1. La gestion de l’eau face à la sécheresse

    La plaine autour de Rivesaltes — notamment les vignobles et vergers — est confrontée à une sécheresse prolongée, avec des niveaux de précipitations très bas depuis plusieurs années, mettant à mal les cultures et la ressource en eau, malgré les pluies de cet hiver. Des agriculteurs témoignent de pertes dramatiques de production (par exemple, d’importantes pertes sur vignes et arbres fruitiers), et de la raréfaction des rivières comme l’Agly, à sec la plupart du temps, ce qui modifie profondément le paysage agricole et accroît les risques d’incendie. Pour notre commune, cela pose plusieurs défis :

    préserver la ressource en eau potable pour les habitants,

    planifier des politiques locales d’économie et de gestion de l’eau (récupération, sobriété, infrastructures),

    anticiper les impacts du changement climatique sur les usages domestiques, agricoles et économiques.

    Pour cela nous comptons:

    👉Stopper la bétonisation pour faciliter l’infiltration des eaux

    👉Réaliser des parkings à revêtement permettant les infiltrations

    👉Végétaliser et ombrager de nombreuses rues

    Ombrager les rues et végétaliser:

    Une bonne idée ?

    2. La biodiversité et les risques naturels

    Les projets d’aménagement, comme la sécurisation de routes (ex : RD900), peuvent impacter des espèces protégées et leurs habitats, nécessitant des consultations publiques et des évaluations environnementales. De plus, Rivesaltes est concernée par des plans de prévention des risques naturels (inondations, feux de forêt, mouvements de terrain) qui influencent les décisions d’urbanisme et d’occupation des sols. Pour notre commune, cela signifie :

    intégrer des mécanismes de protection naturelle et d’urbanisme durable,

    engager les citoyens dans la préservation de la biodiversité locale.

    Nous comptons:

    👉Aménager les berges de l’Agly en concertation avec le SMBVA

    👉Buser l’A9 en concertation avec Vinci pour permettre un meilleur écoulement des eaux en période de crues, puis révision du PPRi (Plan de Prévention du Risque inondation)

    Le nouveau PPRi classe près de 25% de notre territoire inconstructible et à risque majeur. Cela génère une baisse de la valeur immobilière des maisons en zone à fort risque. Pour à la fois diminuer le risque et annuler cette baisse de la valeur foncière, le busage de l’A9 permettrait de réviser ce PPRi au fil de l’eau.

    3. Sensibilisation, éducation et actions citoyennes

    Des initiatives locales, comme des plantations participatives d’arbres avec des écoles et des agriculteurs, illustrent l’intérêt de lier l’éducation, l’environnement et le vivre-ensemble. Cela permet à la fois de renforcer l’implication citoyenne et d’améliorer la qualité écologique du territoire. Nous comptons:

    👉Impliquer les écoles de la commune dans un plan de végétalisation.

    👉Réaliser des potagers éducatifs à proximité des écoles

    4. Le développement durable comme levier d’autonomie et de sobriété

    Pour une commune comme Rivesaltes, le développement durable doit être envisagé comme un outil concret au service des habitants et des finances publiques, et non comme un simple affichage. Les énergies renouvelables locales — photovoltaïque sur les bâtiments communaux, ombrières solaires sur les parkings, géothermie de surface pour certains équipements publics — permettent de réduire durablement les factures énergétiques, de sécuriser l’approvisionnement et de limiter l’empreinte carbone. Ces projets doivent être dimensionnés avec pragmatisme, évalués avant d’être généralisés, et intégrés dans une stratégie globale de sobriété énergétique (rénovation thermique, éclairage public performant, gestion intelligente des consommations). Le développement durable est ainsi un investissement raisonné, qui protège l’environnement tout en préservant l’argent public et en renforçant l’autonomie énergétique de la commune.

    Nous comptons:

    👉Continuer le développement des panneaux photo-voltaiques sur bâtiments publics et installer des bornes de recharge gratuites pour les rivesaltais (avec la carte de résident)

    👉Poursuivre l’étude de géothermie des Dômes. Si positif, réaliser un réseau chaleur pour alimenter les gymnases et administrations

    👉Proposer des subventions aux particuliers pour les travaux d’amélioration de l’isolation thermique des logements et la production de leur propre électricité

    La géothermie: un projet stratégique d’envergure confié à un élu d’opposition de notre liste (Aurélien Gay). Ce choix marque une évolution notable dans la gouvernance municipale, fondée sur la compétence, l’intérêt général et la recherche de solutions durables, au-delà des clivages politiques.

    Les enjeux agricoles pour Rivesaltes

    L’agriculture fait partie intégrante de l’identité et de l’économie de Rivesaltes (viticulture, arboriculture, maraîchage). Les changements climatiques, les périodes de sécheresse et les risques liés à l’eau ont fragilisé la production, menant parfois à l’abandon de cultures ou à des pertes de récoltes, ce qui menace directement les revenus des exploitants agricoles.

    1. Innovation et adaptation des pratiques

    Des projets d’agriculture innovante — comme l’agrivoltaïsme, qui combine production agricole et énergie solaire pour protéger les cultures et optimiser les ressources — sont expérimentés à Rivesaltes. Ces approches peuvent permettre :

    la gestion microclimatique des cultures,

    une production énergétique locale,

    une meilleure résilience face aux aléas climatiques.

    C’est une piste intéressante pour une commune qui souhaite accompagner la transition écologique tout en soutenant sa filière agricole. Dans ce cadre, nous comptons:

    👉Accompagner les agriculteurs dans leur démarche de développement (circuits courts, Bio)

    👉Mettre à disposition des terrains communaux en location longue durée à prix modéré

    Accompagner durablement la filière agricole locale

    2. Diversification des productions agricoles

    Les agriculteurs locaux explorent aussi de nouvelles pistes comme la conversion partielle vers des cultures alternatives (ex : oliveraies à haute densité) pour répondre à la fois aux contraintes environnementales et aux marchés. Pour notre commune, encourager la diversification signifie :

    sécuriser l’emploi agricole,

    soutenir des filières résilientes localement,

    préserver le patrimoine rural.

    Nous comptons:

    👉Aménager le paysage agricole (collaboration avec le Lycée agricole)

    👉Inciter à la diversification des cultures

    👉Restaurer les haies

  • JEUNESSE

    Pour une commune, soutenir sa jeunesse est à la fois stratégique, social, économique et démocratique. Ce n’est pas une dépense “à court terme”, c’est un investissement structurant pour l’avenir du territoire.

    +1%
    POPULATION/AN
    24%
    MOINS DE 19 ANS

    Assurer l’avenir démographique et la vitalité de la commune

    👉 Une commune qui n’investit pas dans sa jeunesse vieillit, se vide ou s’endort.

    • Les jeunes qui se sentent soutenus restent, reviennent ou s’installent.
    • Ils fondent des familles, consomment localement, participent à la vie associative.
    • À l’inverse, une jeunesse qui part faute d’opportunités fragilise les écoles, les commerces et les services publics.

    ➡️ Soutenir la jeunesse, c’est préparer la commune à exister encore dans 10, 20 ou 30 ans.

    NOTRE ENGAGEMENT:

    Faire de la jeunesse une priorité transversale (éducation, sport, culture, emploi, citoyenneté), un levier d’égalité des chances

    👉 Pourquoi faire de la jeunesse notre priorité ?

    1. Préparer l’avenir de Rivesaltes

    Nos enfants et nos jeunes sont les habitants, les parents, les entrepreneurs et les élus de demain.
    En leur donnant des perspectives ici, à Rivesaltes, nous évitons l’exode, nous maintenons nos écoles, nos commerces et notre dynamisme local.

    Soutenir la jeunesse, c’est garantir la vitalité de la commune à long terme.

    👉Poursuite du développement de partenariats avec les associations sportives et culturelles de la commune dans le cadre du Plan Educatif de Territoire (PEDT)

    👉Revente partielle des ~250 maisons inoccupées de la commune en priorité aux jeunes rivesaltais avec aide à la rénovation

    2. Prévenir plutôt que subir

    Une politique jeunesse ambitieuse, c’est :

    • plus de sport, de culture et de loisirs accessibles,
    • plus d’accompagnement éducatif,
    • plus de présence et d’écoute.

    Cela permet de réduire le décrochage scolaire, l’isolement et les incivilités, et de renforcer le respect de l’espace public.

    Investir dans la jeunesse aujourd’hui, c’est éviter des problèmes sociaux et sécuritaires demain.

    👉Développer le soutien scolaire pour éviter le décrochage

    👉Permettre à la jeunesse d’accéder aux installations sportives en dehors des heures d’entrainement, sous surveillance.

    👉Murs dédiés pour graphers, projets artistiques

    Développer le Street-Art: pour quoi faire ?

    3. Favoriser l’insertion et l’emploi local

    La commune doit jouer un rôle de facilitateur :

    • orientation,
    • stages,
    • apprentissage,
    • mise en relation avec les entreprises locales et les associations.

    Une jeunesse formée et accompagnée, ce sont des compétences qui restent sur le territoire et participent au développement économique de Rivesaltes.

    👉Forum de l’emploi annuel entre les demandeurs d’emplois et les entreprises et établissements de formation de la commune

    👉Plateforme STAGES de 3ème/2nde pour les entreprises communales

    👉Aide financière pour le permis de conduire

    Forum et plateforme stages: cela n’existe pas déjà ?

    4. Renforcer le vivre-ensemble et la citoyenneté

    Les jeunes doivent être écoutés, respectés et impliqués :

    • espaces de dialogue,
    • projets collectifs,
    • participation à la vie locale.

    Une jeunesse impliquée est une jeunesse responsable, respectueuse et engagée pour sa ville.

    👉Installation de bureaux partagés (tiers lieu) à l’ancienne halle ferroviaire pour mettre des locaux à disposition des très petites entreprises (proximité de la gare)

    👉Maintien des éducateurs sportifs municipaux dans le temps scolaire

    👉Maintien des activités périscolaires et de l’après-midi à la Guinguette/ Rallye Joffre et des activités de la médiathèque

    👉Maintien du conseil municipal des jeunes

    Un espace de bureaux partagés (un tiers-lieu) c’est quoi ?

    5. Faire de Rivesaltes une ville attractive pour les familles

    Une commune qui soutient sa jeunesse est une commune qui :

    • attire de nouvelles familles,
    • améliore son image,
    • renforce sa cohésion sociale.

    La politique jeunesse est un marqueur fort de modernité et de confiance en l’avenir.

    👉Création d’un centre administratif petite enfance/jeunesse à côté de la crêche (bâtiment déjà acquis): toutes les démarches dans un lieu unique

    👉Accueil Club des Jeunes et Hippocampe les mercredi dès 7h30

    👉Parcs pour enfants et city-stades dans les quartiers

    6. Une politique jeunesse adaptée à chaque âge

    Parce que les besoins ne sont pas les mêmes à 12, 16 ou 25 ans, notre politique jeunesse sera différenciée et progressive.
    Pour les adolescents, la priorité sera donnée à des espaces encadrés, éducatifs et accessibles favorisant le sport, la culture, les loisirs et l’accompagnement scolaire, afin de prévenir le décrochage et l’isolement.
    Pour les jeunes adultes, l’action municipale s’orientera davantage vers l’autonomie et l’insertion : accompagnement vers l’emploi, les stages et l’apprentissage, soutien aux projets associatifs ou entrepreneuriaux, accès au logement et à la mobilité.
    Cette déclinaison permettra à chaque jeune de trouver sa place à Rivesaltes, de grandir, de s’émanciper et de construire son avenir sans être contraint de quitter la commune.

  • EDUCATION

    Même si l’Éducation nationale relève de l’État, la commune joue un rôle déterminant dans les conditions d’apprentissage, l’égalité des chances et la réussite des enfants.
    À Rivesaltes, où les réalités sociales sont contrastées, l’éducation est un levier majeur de cohésion, de prévention et d’avenir.

    +5,5%
    AUGMENTATION D’ÉLÈVES /AN
    1900
    ÉLÈVES SUR LA COMMUNE

    L’éducation est un puissant facteur de changement. Elle améliore la santé et les moyens de subsistance, contribue à la stabilité sociale et stimule la croissance économique à long terme. Elle est essentielle à la réalisation de chacun des 17 objectifs de développement durable. À Rivesaltes, l’éducation est un investissement pour l’avenir, un outil d’égalité et un pilier du vivre-ensemble.

    1. Garantir l’égalité des chances dès le plus jeune âge

    Tous les enfants n’arrivent pas à l’école avec les mêmes ressources familiales, sociales ou culturelles. La commune agit sur :

    • la qualité des écoles (bâtiments, équipements, confort),
    • l’accès à la cantine, au périscolaire et aux activités,
    • le soutien aux familles en difficulté.

    Une politique éducative municipale juste réduit les inégalités avant qu’elles ne se creusent. Nos actions concrètes:

    👉 Démarrer les démarches d’un 3ème groupe scolaire dans la zone Nord Agly (Cami de Vingrau, Roboul, Solades) (compétence ministère)

    👉Réflexion autour de la cantine Malraux (si création 3ème groupe scolaire)

    👉Poursuite du développement de partenariats avec les associations sportives et culturelles de la commune dans le cadre du Plan Educatif de Territoire (PEDT)

    Un 3ème groupe scolaire: utile, mais où ?

    2. Offrir des conditions d’apprentissage dignes et modernes

    Les bâtiments scolaires et les équipements influencent directement :

    • la concentration,
    • le bien-être,
    • la réussite scolaire.

    Enjeux concrets pour la commune :

    • entretien et rénovation des écoles,
    • confort thermique et acoustique,
    • sécurité des abords et des déplacements.

    Une école bien entretenue, c’est un signal fort envoyé aux enfants et aux parents.

    👉Poursuite de la modernisation des établissements scolaires (informatique, équipement, salles artistiques et de motricité)

    👉Accompagner les établissements pour faire face aux conséquences du changement climatique

    👉Expérimenter l’école sans voiture: fermer temporairement à la circulation certaines rues autour des établissements scolaires aux heures d’entrée et de sortie

    👉Parkings vélos/trottinettes fermés à l’entrée des écoles

    Favoriser des trajets apaisés à pied ou à vélo vers l’école

    3. Articuler école, périscolaire et temps extrascolaire

    L’éducation ne s’arrête pas à la porte de la classe. La commune a un rôle clé sur :

    • le périscolaire,
    • les activités sportives, culturelles et éducatives,
    • l’accompagnement aux devoirs et à la lecture.

    La complémentarité des temps éducatifs est essentielle à la réussite des enfants.

    👉 Accueil garderie dès 7h15 en maternelle/primaire et jusqu’à 18h40

    👉Continuer l’aide aux devoirs pendant le temps de garderie

    👉Accès des salles communales pour les activités périscolaires

    4. Prévenir le décrochage et les difficultés dès le plus jeune âge

    L’éducation est aussi un enjeu de prévention sociale.

    • Repérage précoce des difficultés,
    • travail avec les équipes éducatives, les associations et les familles,
    • accompagnement plutôt que sanction.

    Investir dans l’éducation aujourd’hui, c’est prévenir les ruptures de demain.

    👉 Renforcer l’accompagnement des élèves en difficulté, notamment via des dispositifs spécialisés et un suivi individualisé dès le primaire

    👉Favoriser la transition vers le collège et le lycée, en créant des passerelles entre les cycles, des ateliers d’orientation et des programmes de découverte des métiers

    Forum emploi en collaboration avec les établissements scolaires

    5. Soutenir les familles et renforcer le lien école–commune

    Pour beaucoup de familles, la commune est le premier interlocuteur.

    • Dialogue avec les parents,
    • écoute des besoins,
    • soutien logistique et humain.

    Une commune présente rassure les familles et favorise un climat éducatif apaisé.

    👉Encourager la mixité sociale et culturelle, en valorisant la diversité des parcours et en luttant contre les inégalités scolaires, pour que chaque enfant, quel que soit son environnement, puisse réussir.

    L’importance de la mixité sociale à l’école

    6. Préparer l’avenir des jeunes Rivesaltais

    L’éducation municipale doit aussi ouvrir des perspectives :

    • découverte culturelle et sportive,
    • sensibilisation à la citoyenneté,
    • orientation et accompagnement des parcours.

    Former des citoyens épanouis, autonomes et responsables est un enjeu collectif.

    👉Continuer le conseil municipal des jeunes

    👉Soutien aux classes vertes, de neige, nature et sportives (comme le cycle voile)